x
发布需求
发布需求
咨询
咨询
聊天
聊天
意见反馈
意见反馈
返回顶部
返回顶部
*标题:
*内容描述:

返回上一页

设计服务商: 研创建筑设计事务所(杭州)有限公司 去设计师主页 >>
办公地址: 浙江 杭州市 余杭区
团队规模: 10-50人
注册年份: 2021
年营业收入: 1200 万元-3000 万元
服务点赞数: 0位用户点过赞
项目名称: 安吉递铺街道58号地块项目
设计服务类型: 建筑规划及方案设计
设计服务类型子类: 建筑规划设计(平面图、效果图)+ 建筑方案设计(平面图、立面图、剖面图、效果图)
项目类型: 公寓/小区住宅
建筑栋数: ≥2栋
项目设计年份: 2023
建筑面积: 88033 m²
项目状态: 建设中
建筑高度是否大于100M: ≤ 100M
建筑结构: 框架结构
项目地点: 浙江 湖州市 湖州市, 浙江, 中国, 东亚
设计风格: 现代
项目档次: 精装型(3星级)
项目背景
项目位于浙江省湖州市安吉县,占地面积45428平方米。以现代都市为基调,结合周边优美的自然环境,满足住宅建设需求,合理利用有限的土地资源为宗旨,融入周边总体形象和创造环境出发,形成排屋叠拼高层不同功能区域,功能划分清晰。
项目基地东侧紧邻杭长高速,距离高速路口较近,交通便利;西侧紧邻绕城东路北侧有304省道,且周围交通网纵横贯穿,与市区联系紧密,交通便利。
基地位于安吉县主城区东侧2公里处,周边配套主要集中主城区,基地南临梅园溪。3公里内基础设施相对欠缺。
项目愿景
总体规划效果图
鸟瞰图
总体规划平面图
总体规划平面图
建筑方案效果图
小区主入口效果图
沿河效果图
高层效果图
沿绕城东线效果图
单体叠墅效果图
单体排屋效果图
单体高层效果图
建筑方案平面图
一号楼地下一层平面图
一号楼一层平面图
一号楼二层平面图
一号楼三层平面图
一号楼屋顶层平面图
建筑方案立面图
一号楼南北立面图
建筑方案剖面图
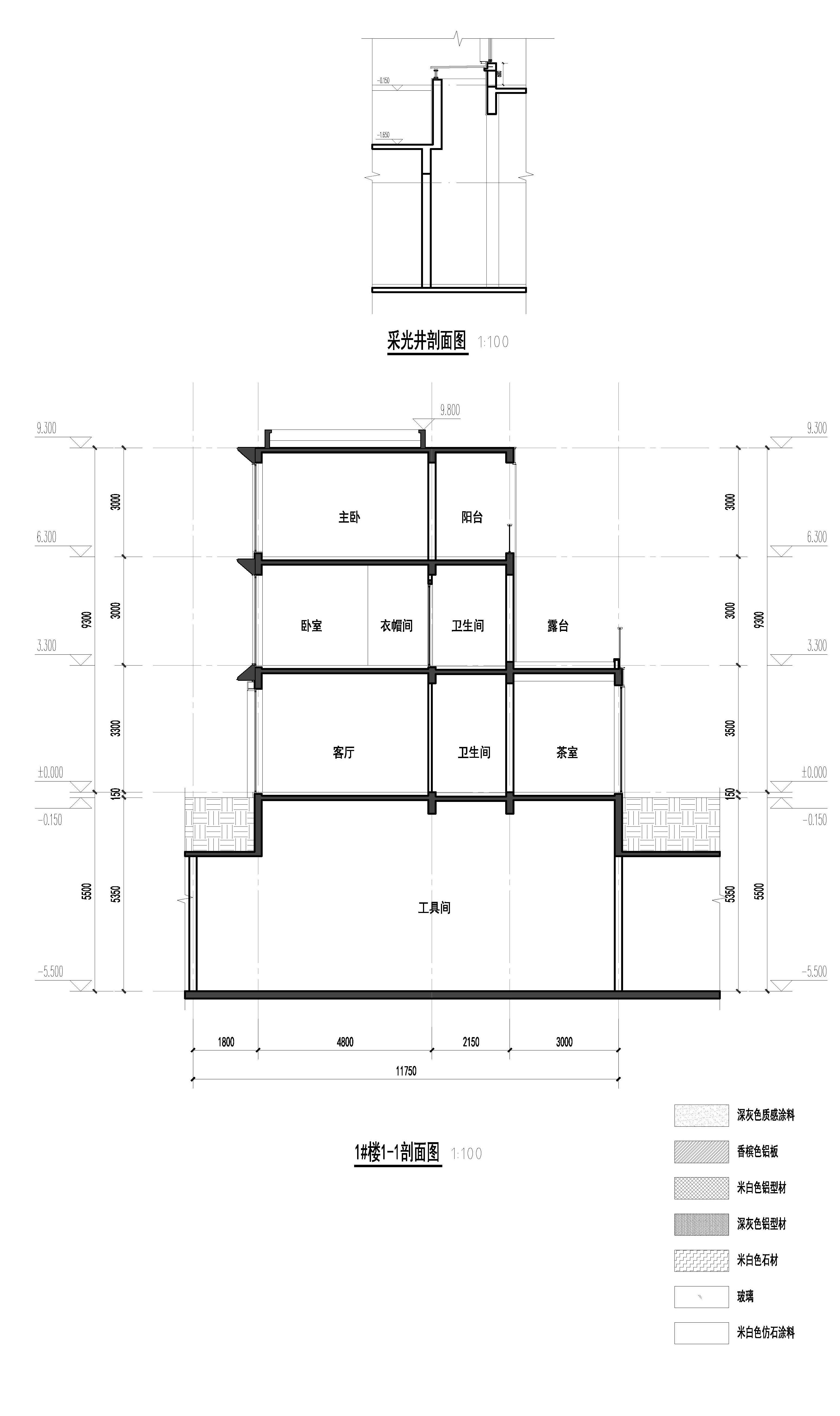
一号楼剖面图
以上内容由设计服务商上传
以上内容均由研创建筑设计事务所(杭州)有限公司上传
已做版权声明,如需转载请获得版权人的许可
评论
${0} 条评论 ${0} 条评论
暂无评论
发表评论
* 沟通语言(口语):
请尽量勾选您能提供服务的语言,能让您更快获得匹配询盘和商机。
所在地官方推荐语言: 请选择地址 选择项目所在地后,我们将会推荐相应官方语言
其他沟通语言: 常见国际用语您可以直接选择
+ 添加更多 您可添加更多语言
不能为空!

审核未通过的原因:

* 沟通语言(书面):
请尽量勾选您能提供服务的语言,能让您更快获得匹配询盘和商机。
所在地官方推荐语言: 请选择地址 选择项目所在地后,我们将会推荐相应官方语言
其他沟通语言: 常见国际用语您可以直接选择
+ 添加更多 您可添加更多语言
不能为空!

审核未通过的原因:

如果没有您的语言,请联系我们:service@buildmost.com
充值账号:
充值数额:
《素材纠纷提交须知》
不能为空!
支付方式:
选择您的业务服务类型
请选择您的主要业务服务类型,部分类型支持多选
买家
商家
请输入公司名称 (选填):
设计服务商
可提供设计服务:
建筑设计
室内设计
园林景观设计
钢结构设计
建筑幕墙设计
其他设计
工程服务商
能提供工程服务:
室内装修工程
建筑工程
园林景观工程
其他工程服务
为工程项目采购:
建材、家具、设备等
产品设备供应商
可提供:
机电设备
智能化设备
地面及墙面材料
卫浴
门窗及幕墙
家具
照明
艺术品
酒店用品
其他产品及设备
选择您的业务类型
请选择您的身份类型(公司/个人):
1.若您能提供公司营业执照或相关注册证书,请选择设计公司身份;
2.若您是独立设计师或就职于设计公司,无法提供公司营业执照或相关注册证书,请选择独立设计师身份。
请选择具体身份类型(可多选): 请选择具体身份类型(最多选择8个):
请选择具体身份类型(可多选):
请选择具体身份类型(可多选):
补充账户信息
* 手机号码:
* 验证码:
* 设置密码:
  邀请码:
已有账号?
绑定已有账号
  • 手机号码登录
  • 邮箱登录
密码错误
忘记密码 >
注册成功,欢迎加入!
买家 | 需求方
若您需要寻找设计、装修服务或采购商品,请发布您的需求。
去发布需求 >
商家 | 产品/服务提供方
若您是设计服务商、装修服务商或产品供应商,请完成认证。
去认证 >
微信登录
支付宝登录
QQ 登录
账户登录
使用微信扫码登录
欢迎登录 BuildMost
登录/注册即表示您同意我们的 《BuildMost服务协议》 《BuildMost隐私政策》
请您先阅读并同意服务条款和隐私政策
您勾选了身份。
请您确认:您公司是否有自己的设计团队来承接其他客户的设计服务订单?
请选择是否拥有设计团队
您勾选了身份。
请您确认:您公司是否有自己的施工团队来承接其他客户的工程订单?
请选择是否拥有施工团队
该邮箱/手机号已绑定
如需解绑,请先登录原账号,或使用其他未绑定的邮箱/手机。
微信 QQ Google Facebook 支付宝