x
发布需求
发布需求
咨询
咨询
聊天
聊天
意见反馈
意见反馈
返回顶部
返回顶部
*标题:
*内容描述:
首页 室内设计案例精选 自然风 2000平6层别墅

返回上一页

设计服务商: 深圳市欧素娜空间设计有限公司 去设计师主页 >>
办公地址: 广东 揭阳市 榕城区
注册年份: 2020
年营业收入: 600万元以下
服务点赞数: 0位用户点过赞
项目名称: 自然风 2000平6层别墅
设计服务类型: 室内装饰设计(平面图,效果图,施工图)
项目类型: 别墅/自建房
项目设计年份: 2024
建筑面积: 2000 m²
项目状态: 装修中
项目地点: 广东 揭阳市 揭阳市, 广东, 中国, 东亚
设计风格: 现代
项目档次: 豪华型(4星级)
项目背景
这是位于广东揭阳,为三代同堂的一大家族打造的六层、约2000㎡的整体居住空间。原建筑设有两个游泳池,改造中我们重新梳理其功能关系:将其中一个转化为归家入口空间,强化仪式感与轴线秩序;另一个保留并演变为内庭院,使自然光、景观与生活日常深度融合。 整体设计以原木与自然材质为基调,营造温润、松弛且适合长期居住的家庭氛围。空间功能上,1F作为家庭公共活动核心,承担会客、聚餐与家族交流;2F–5F为私密居住区,满足不同代际的作息与生活习惯。 一层采用“双主厅”布局:主厅服务于男主父母的日常会客与家族聚集,副厅则更贴近男主与女主的生活节奏,在共享中保持适度独立。楼梯居中设置,并与电梯正对,大幅缩短垂直与水平动线,提高六层空间的整体效率。 餐厅配置完整中厨系统并搭配冻库,为一大家族的日常与宴请提供周全而从容的支持。整体空间在秩序、效率与情感之间,取得了平衡。
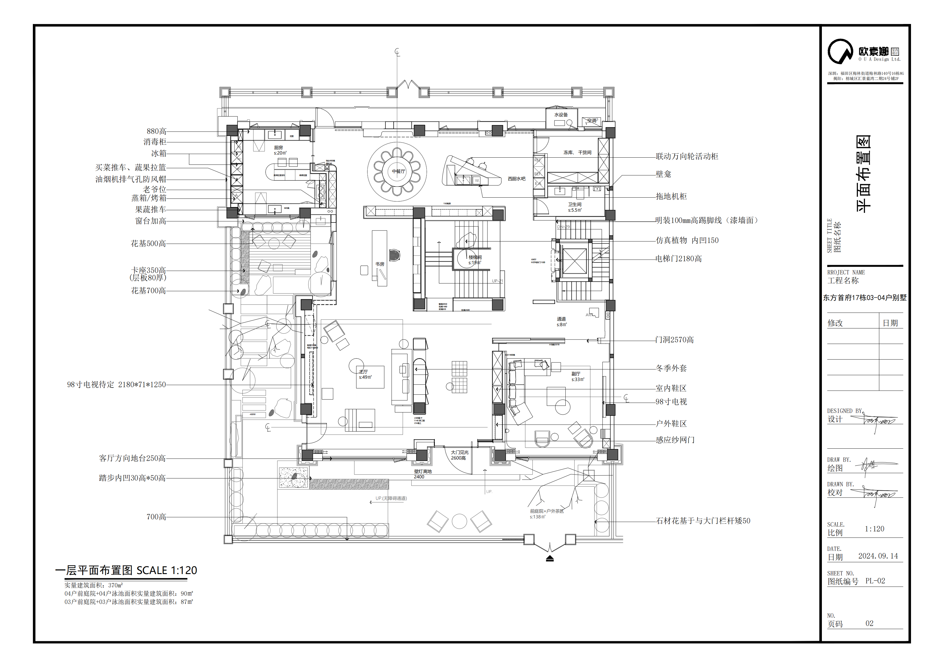
平面图
一层平面图
别墅-卧室(主人房)
主卧
别墅-客厅、起居室
主厅背景
副厅
别墅-餐厅、早餐厅
餐厅
别墅-电梯厅
电梯厅
以上内容由设计服务商上传
以上内容均由深圳市欧素娜空间设计有限公司上传
已做版权声明,如需转载请获得版权人的许可
评论
${0} 条评论 ${0} 条评论
暂无评论
发表评论
* 沟通语言(口语):
请尽量勾选您能提供服务的语言,能让您更快获得匹配询盘和商机。
所在地官方推荐语言: 请选择地址 选择项目所在地后,我们将会推荐相应官方语言
其他沟通语言: 常见国际用语您可以直接选择
+ 添加更多 您可添加更多语言
不能为空!

审核未通过的原因:

* 沟通语言(书面):
请尽量勾选您能提供服务的语言,能让您更快获得匹配询盘和商机。
所在地官方推荐语言: 请选择地址 选择项目所在地后,我们将会推荐相应官方语言
其他沟通语言: 常见国际用语您可以直接选择
+ 添加更多 您可添加更多语言
不能为空!

审核未通过的原因:

如果没有您的语言,请联系我们:service@buildmost.com
充值账号:
充值数额:
《素材纠纷提交须知》
不能为空!
支付方式:
选择您的业务服务类型
请选择您的主要业务服务类型,部分类型支持多选
买家
商家
请输入公司名称 (选填):
设计服务商
可提供设计服务:
建筑设计
室内设计
园林景观设计
钢结构设计
建筑幕墙设计
其他设计
工程服务商
能提供工程服务:
室内装修工程
建筑工程
园林景观工程
其他工程服务
为工程项目采购:
建材、家具、设备等
产品设备供应商
可提供:
机电设备
智能化设备
地面及墙面材料
卫浴
门窗及幕墙
家具
照明
艺术品
酒店用品
其他产品及设备
选择您的业务类型
请选择您的身份类型(公司/个人):
1.若您能提供公司营业执照或相关注册证书,请选择设计公司身份;
2.若您是独立设计师或就职于设计公司,无法提供公司营业执照或相关注册证书,请选择独立设计师身份。
请选择具体身份类型(可多选): 请选择具体身份类型(最多选择8个):
请选择具体身份类型(可多选):
请选择具体身份类型(可多选):
补充账户信息
* 手机号码:
* 验证码:
* 设置密码:
  邀请码:
已有账号?
绑定已有账号
  • 手机号码登录
  • 邮箱登录
密码错误
忘记密码 >
注册成功,欢迎加入!
买家 | 需求方
若您需要寻找设计、装修服务或采购商品,请发布您的需求。
去发布需求 >
商家 | 产品/服务提供方
若您是设计服务商、装修服务商或产品供应商,请完成认证。
去认证 >
微信登录
支付宝登录
QQ 登录
账户登录
使用微信扫码登录
欢迎登录 BuildMost
登录/注册即表示您同意我们的 《BuildMost服务协议》 《BuildMost隐私政策》
请您先阅读并同意服务条款和隐私政策
您勾选了身份。
请您确认:您公司是否有自己的设计团队来承接其他客户的设计服务订单?
请选择是否拥有设计团队
您勾选了身份。
请您确认:您公司是否有自己的施工团队来承接其他客户的工程订单?
请选择是否拥有施工团队
该邮箱/手机号已绑定
如需解绑,请先登录原账号,或使用其他未绑定的邮箱/手机。
微信 QQ Google Facebook 支付宝