x
发布需求
发布需求
咨询
咨询
聊天
聊天
意见反馈
意见反馈
返回顶部
返回顶部
*标题:
*内容描述:
首页 室内设计案例精选 澳大利亚墨尔本,仓库改造的二手车行

返回上一页

设计服务商: 北京中芯建设设计事务所 去设计师主页 >>
办公地址: 北京 北京市 朝阳区
团队规模: 10人以下
注册年份: 2017
年营业收入: 600万元以下
服务点赞数: 0位用户点过赞
项目名称: 澳大利亚墨尔本,仓库改造的二手车行
设计服务类型: 室内装饰设计(平面图,效果图,施工图)
项目类型: 其他空间
项目状态: 装修中
项目地点: 澳大利亚 维多利亚 Melbourne, 维多利亚, 澳大利亚, 大洋洲
设计风格: 后现代
项目档次: 经济型(1星级)
项目背景
原建筑是废弃厂房,因预算有限,整体没有做任何调整。
原厂房内饰,刚刚做完拆除工作。因天花破损严重,因此应业主要求,天花喷黑处理。另窗外景观不好,局部窗户要封堵,用灯光烘托室内效果。
整体购车大厅效果展示。简单切有效的实现空间功能,并能用最小的预算投资。
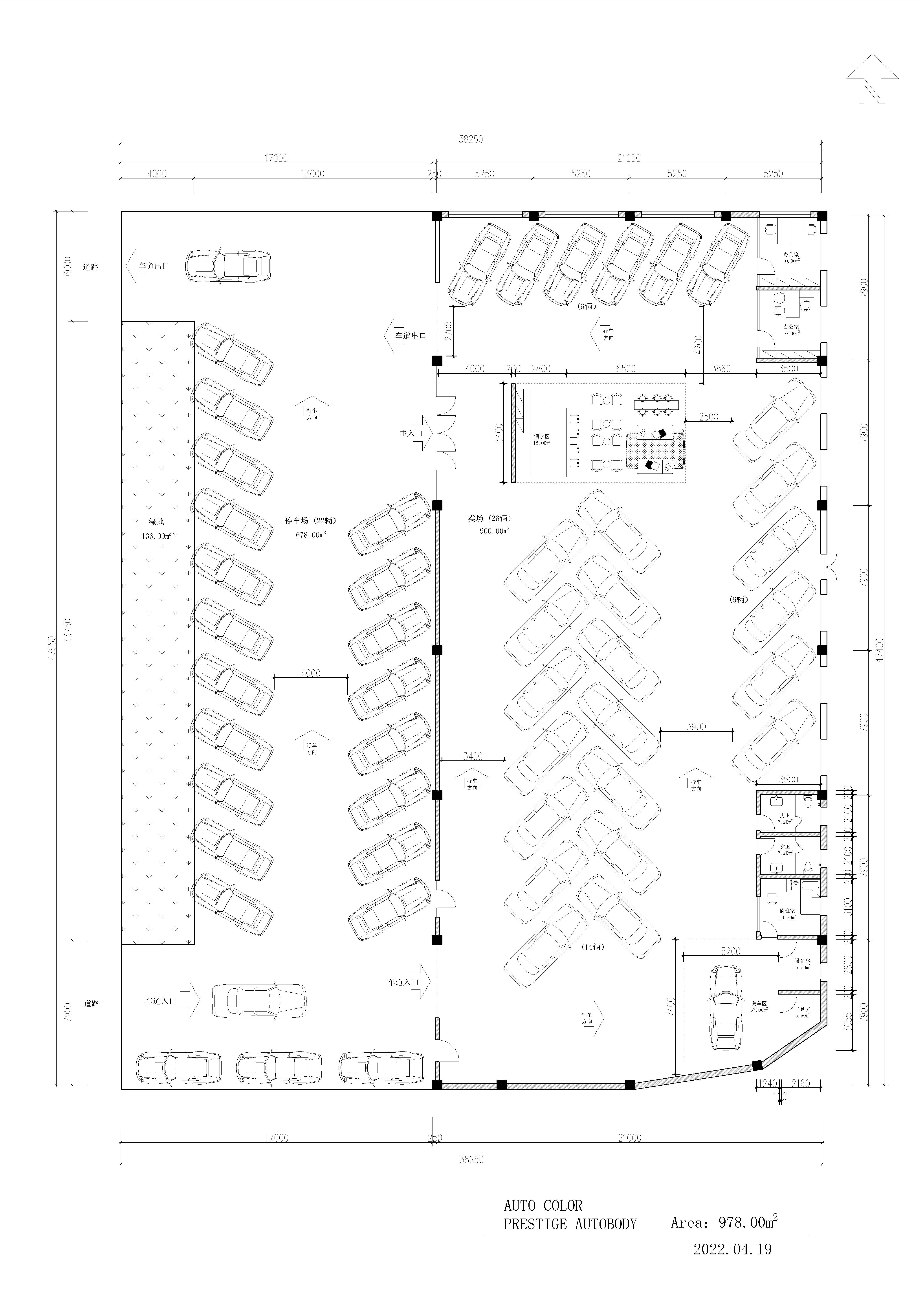
平面图
效果图
工厂鸟瞰图,因第一版使用LUMIONZ制作的日光效果,应业主要求解约造价,设计方案做了简化。
原建筑增加一些灯光效果,LED发光LOGO。
购车大厅的休息区域,水吧台、沙发、会谈桌,满足休息、谈判、做咖啡等需求。应业主要求,空间主要使用灯光效果,不考虑自然采光,因原建筑顶面破损,全喷黑处理遮挡。主梁内藏蓝色灯光,烘托气氛。
购车大厅,950平方米,利用45度斜入排列,可以停放25~30辆汽车。整体使用LED灯光条作为照明,墙面使用灯带及射灯,满足以后的广告宣传。
入口主题墙,应业主要求墙面嵌入一个火炉装饰。
因当地的红砖是最简单的材料,办公室隔墙不做其他装饰,和玻璃搭配,局部灯光点缀。
卫生间,值班室、工具房。大厅局部有个洗车区域。
购车大厅的另外一个角度。
以上内容由设计服务商上传
以上内容均由北京中芯建设设计事务所上传
已做版权声明,如需转载请获得版权人的许可
评论
${0} 条评论 ${0} 条评论
暂无评论
发表评论
* 沟通语言(口语):
请尽量勾选您能提供服务的语言,能让您更快获得匹配询盘和商机。
所在地官方推荐语言: 请选择地址 选择项目所在地后,我们将会推荐相应官方语言
其他沟通语言: 常见国际用语您可以直接选择
+ 添加更多 您可添加更多语言
不能为空!

审核未通过的原因:

* 沟通语言(书面):
请尽量勾选您能提供服务的语言,能让您更快获得匹配询盘和商机。
所在地官方推荐语言: 请选择地址 选择项目所在地后,我们将会推荐相应官方语言
其他沟通语言: 常见国际用语您可以直接选择
+ 添加更多 您可添加更多语言
不能为空!

审核未通过的原因:

如果没有您的语言,请联系我们:service@buildmost.com
充值账号:
充值数额:
《素材纠纷提交须知》
不能为空!
支付方式:
选择您的业务服务类型
请选择您的主要业务服务类型,部分类型支持多选
买家
商家
请输入公司名称 (选填):
设计服务商
可提供设计服务:
建筑设计
室内设计
园林景观设计
钢结构设计
建筑幕墙设计
其他设计
工程服务商
能提供工程服务:
室内装修工程
建筑工程
园林景观工程
其他工程服务
为工程项目采购:
建材、家具、设备等
产品设备供应商
可提供:
机电设备
智能化设备
地面及墙面材料
卫浴
门窗及幕墙
家具
照明
艺术品
酒店用品
其他产品及设备
选择您的业务类型
请选择您的身份类型(公司/个人):
1.若您能提供公司营业执照或相关注册证书,请选择设计公司身份;
2.若您是独立设计师或就职于设计公司,无法提供公司营业执照或相关注册证书,请选择独立设计师身份。
请选择具体身份类型(可多选): 请选择具体身份类型(最多选择8个):
请选择具体身份类型(可多选):
请选择具体身份类型(可多选):
补充账户信息
* 手机号码:
* 验证码:
* 设置密码:
  邀请码:
已有账号?
绑定已有账号
  • 手机号码登录
  • 邮箱登录
密码错误
忘记密码 >
注册成功,欢迎加入!
买家 | 需求方
若您需要寻找设计、装修服务或采购商品,请发布您的需求。
去发布需求 >
商家 | 产品/服务提供方
若您是设计服务商、装修服务商或产品供应商,请完成认证。
去认证 >
微信登录
支付宝登录
QQ 登录
账户登录
使用微信扫码登录
欢迎登录 BuildMost
登录/注册即表示您同意我们的 《BuildMost服务协议》 《BuildMost隐私政策》
请您先阅读并同意服务条款和隐私政策
您勾选了身份。
请您确认:您公司是否有自己的设计团队来承接其他客户的设计服务订单?
请选择是否拥有设计团队
您勾选了身份。
请您确认:您公司是否有自己的施工团队来承接其他客户的工程订单?
请选择是否拥有施工团队
该邮箱/手机号已绑定
如需解绑,请先登录原账号,或使用其他未绑定的邮箱/手机。
微信 QQ Google Facebook 支付宝