x
发布需求
发布需求
咨询
咨询
聊天
聊天
意见反馈
意见反馈
返回顶部
返回顶部
*标题:
*内容描述:
首页 室内设计案例精选 改造丨爱神的花园

返回上一页

设计服务商: 尤舜乙 去设计师主页 >>
办公地址: 江苏 南京市
服务点赞数: 0位用户点过赞
项目名称: 改造丨爱神的花园
设计服务类型: 室内装饰设计(平面图,效果图,施工图)
项目类型: 公寓/小区住宅
项目状态: 已装修完毕
项目地点: 重庆 重庆市 重庆市, 重庆, 中国, 东亚
设计风格: 现代
项目档次: 精装型(3星级)
项目背景
花园本荒芜 使其重焕生机之人 是你
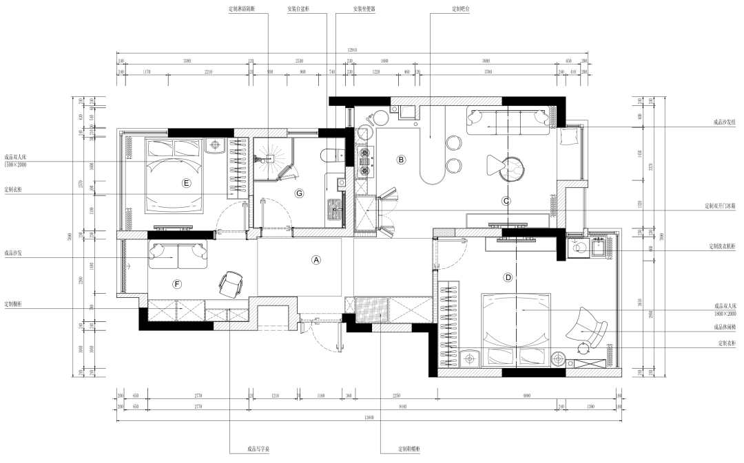
平面图
效果图
玄关 鲜明的颜色一定需要稳重的颜色来衬托,所以在玄关处,我们整体的设计思路是色彩对比明显,将一白、一黑分割又彼此融入,在这种矛盾协调中,达到先声夺人的目的。通铺的地板有助于视觉延伸,而墙体的造型、颜色又为单调的玄关增加了层次感。
客厅 客厅是整个空间设计的重点,是这座花园最明亮最美丽的地方。白色的背景墙、白色的电视柜、白色的沙发、白色的纱帘,都为客厅增添了小清新的气息。业主没有选择安装电视,而是摆放装饰画来代替电视的位置,此外画框、茶几、抱枕也与主灯的色调形成呼应。
厨房 我们将墙体拆除,打造出一个开放式厨房。厨房与客餐厅处在同一个区域当中,彼此都在视觉上得到了延伸和扩展。当然,一个开放厨房一定要注意油烟外溢的问题,我们为业主精心挑选了吸力强劲的吸油烟机,保证在开火做饭的时候,客厅不会被打扰到。
卫生间 卫生间整体采用高级的黑白灰色系,它不像办公区域那么明艳,也不像客厅区域那么甜美,它拥有一丝特别的性冷淡风。淋浴间选用了黑色极窄边框,与镜子的正方形光带相辅相成,干净硬朗又不乏时尚。洗手台是中间悬浮结构,避免灰尘污渍堆积,方便清扫。
卧室 主卧延续了客厅的甜美简约现代风,满足业主在生活中的少女心。虽然业主独居,但是我们还是选用了1800mm*2000mm尺寸的大双人床,业主可以放松地摊开身体躺在床上,获得良好的休息体验。在窗户区域,我们顺着户型的形状,划分了一个拥有落地窗的阳台,业主也可以在阳台进行阅读和短暂休憩。 在阳台区域,墙面设置了四格壁龛,起到储物及装饰作用。这里还摆放了一张粉色的布质懒人椅、一盏月球形状的球灯,上方搭配一盏吊灯,可以作为业主的休闲空间来使用。阳台依旧铺了与客厅相似的灰色地毯,业主能够摆脱鞋子的束缚,光脚在这里进行活动。
以上内容由设计服务商上传
以上内容均由尤舜乙上传
已做版权声明,如需转载请获得版权人的许可
评论
${0} 条评论 ${0} 条评论
暂无评论
发表评论
* 沟通语言(口语):
请尽量勾选您能提供服务的语言,能让您更快获得匹配询盘和商机。
所在地官方推荐语言: 请选择地址 选择项目所在地后,我们将会推荐相应官方语言
其他沟通语言: 常见国际用语您可以直接选择
+ 添加更多 您可添加更多语言
不能为空!

审核未通过的原因:

* 沟通语言(书面):
请尽量勾选您能提供服务的语言,能让您更快获得匹配询盘和商机。
所在地官方推荐语言: 请选择地址 选择项目所在地后,我们将会推荐相应官方语言
其他沟通语言: 常见国际用语您可以直接选择
+ 添加更多 您可添加更多语言
不能为空!

审核未通过的原因:

如果没有您的语言,请联系我们:service@buildmost.com
充值账号:
充值数额:
《素材纠纷提交须知》
不能为空!
支付方式:
选择您的业务服务类型
请选择您的主要业务服务类型,部分类型支持多选
买家
商家
请输入公司名称 (选填):
设计服务商
可提供设计服务:
建筑设计
室内设计
园林景观设计
钢结构设计
建筑幕墙设计
其他设计
工程服务商
能提供工程服务:
室内装修工程
建筑工程
园林景观工程
其他工程服务
为工程项目采购:
建材、家具、设备等
产品设备供应商
可提供:
机电设备
智能化设备
地面及墙面材料
卫浴
门窗及幕墙
家具
照明
艺术品
酒店用品
其他产品及设备
选择您的业务类型
请选择您的身份类型(公司/个人):
1.若您能提供公司营业执照或相关注册证书,请选择设计公司身份;
2.若您是独立设计师或就职于设计公司,无法提供公司营业执照或相关注册证书,请选择独立设计师身份。
请选择具体身份类型(可多选): 请选择具体身份类型(最多选择8个):
请选择具体身份类型(可多选):
请选择具体身份类型(可多选):
补充账户信息
* 手机号码:
* 验证码:
* 设置密码:
  邀请码:
已有账号?
绑定已有账号
  • 手机号码登录
  • 邮箱登录
密码错误
忘记密码 >
注册成功,欢迎加入!
买家 | 需求方
若您需要寻找设计、装修服务或采购商品,请发布您的需求。
去发布需求 >
商家 | 产品/服务提供方
若您是设计服务商、装修服务商或产品供应商,请完成认证。
去认证 >
微信登录
支付宝登录
QQ 登录
账户登录
使用微信扫码登录
欢迎登录 BuildMost
登录/注册即表示您同意我们的 《BuildMost服务协议》 《BuildMost隐私政策》
请您先阅读并同意服务条款和隐私政策
您勾选了身份。
请您确认:您公司是否有自己的设计团队来承接其他客户的设计服务订单?
请选择是否拥有设计团队
您勾选了身份。
请您确认:您公司是否有自己的施工团队来承接其他客户的工程订单?
请选择是否拥有施工团队
该邮箱/手机号已绑定
如需解绑,请先登录原账号,或使用其他未绑定的邮箱/手机。
微信 QQ Google Facebook 支付宝