x
发布需求
发布需求
咨询
咨询
聊天
聊天
意见反馈
意见反馈
返回顶部
返回顶部
*标题:
*内容描述:
首页 室内设计案例精选 触觉设计 | 私宅之间,之间你我

返回上一页

设计服务商: 天津触觉装饰工程有限公司 去设计师主页 >>
办公地址: 天津 天津市 河西区
团队规模: 10-50人
注册年份: 2012
年营业收入: 600万元以下
服务点赞数: 0位用户点过赞
项目名称: 触觉设计 | 私宅之间,之间你我
设计服务类型: 室内装饰设计(平面图,效果图,施工图)
项目类型: 公寓/小区住宅
项目状态: 已装修完毕
项目地点: 北京 北京市 北京市, 北京, 中国, 东亚
设计风格: 现代
项目档次: 精装型(3星级)
项目背景
当生活方式和建筑融为一体时,生命才能开始庆祝。 Life can begin to celebrate when the way of life and the building merge. ——巴克里希纳·多西(B.V.Doshi) 我们便是要追求那种一笔画下、一气呵成的流畅感,戒掉形同样版一般不具表情的空间设计,在有限的框架内,构筑超出实际空间所能承载的美学及生活方式,让「你我之间」满足一切感性的体验……
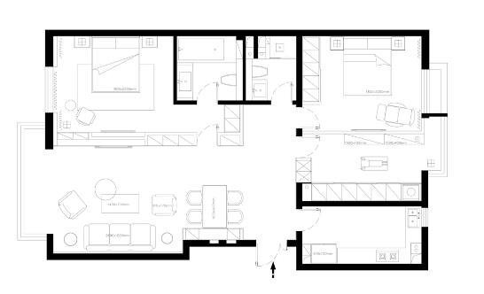
平面图
原始结构图
平面规划图
效果图
次卧延续黑白灰色系,为了中和高级灰带来的冷酷感,用多元化材质与形态的卡通玩偶作装饰摆件,令空间颇具几分趣味。
从一进门开始,步入眼帘的便是来自意大利的CPM装甲门,竖版条纹式设计且自带与生俱来的厚重感,让人从一进门就能感受到极大的安全感,霸气十足!配以百年经典的Yale智能联动门锁,让主人从刷指纹进入家的那一刻,便拥有了为自己量身定制的六大智能场景,无不体现智能家居为我们生活带来的舒适与便利。
本案中,设计师用别具一格的设计手法,在有限的框架内打破一贯的居住思维,构筑定制化的美学及生活方式,让「你我之间」满足一切感性的功能体验与视觉冲击力。各种材质衔接自然且流畅,巧妙绝伦地演绎出每种功能空间的节奏属性。每一个设计亮点都与屋主的性格相互交流,诠释屋主对品质生活的要求。
仅由轮廓与线条勾勒的时钟为客厅增添了几分洁净利落的神韵,与天然石材背景墙相互依托,呈现出独特的装饰效果。整个客厅宽敞通透、装饰简练而精致,时刻彰显着屋主的格调与品位。
客厅呈黑白灰色调,作为整个客厅的亮点——沙发背景墙,设计师用特殊材料做呈现,还原并强调空间内材质交织的魅力,引入质朴天然石材,与良好的自然光照相映,平衡着整个空间内的家具造型,同时也平衡着理性的生活方式,并满足感性、大胆、创新的生活体验。极简风格的电视背景墙与木纹、石材形成了独有的成熟内敛气质。
客厅电视墙选自老矿的云朵拉灰天然石材与来自台湾的KD纯实木涂装板,配以黑色拉手,形成了绝佳的完美组合。充分展示了石材+木饰面+金属钢板+灰色地砖的多材质应用。
厨房所使用的则是来自日本进口的Toclas橱柜,这种灰色的冷艳配以欧文莱55度灰色,绝对让人爱上厨房,全进口厨房电器,又为厨房增添了许多高级感,让下厨变得更有仪式感。
餐区正对的的粉、蓝、黑色的限量版玩偶,让我们永远保持一颗童心。
卫生间则选用来自福建特选石材——杭灰石,配以欧文莱灰,和谐中透漏出大气与沉稳,来自土耳其的威达洁具,也毫不逊色,占据着整个主卫的C位。
灰色棉麻床品,简单却富有品质感。床头的装饰画在灰色空间和暖色灯光的映衬下,显得尤为独特,深色木地板低调而高雅。整个空间简洁大气,单纯不繁琐,营造出宁静、悠雅的睡眠空间。
床头主背景墙的KD饰面+灰色玻璃的意式极简衣柜,配以锐驰的家具——有范儿!
整个衣帽间尽收眼底,满满的各种限量版暴力熊,满满的Poliform原版柜体材质制作的五斗橱,配以意式极简窄边框衣帽柜门,当门打开的一瞬间,所有灯只为你开启。
以上内容由设计服务商上传
以上内容均由天津触觉装饰工程有限公司上传
已做版权声明,如需转载请获得版权人的许可
评论
${0} 条评论 ${0} 条评论
暂无评论
发表评论
* 沟通语言(口语):
请尽量勾选您能提供服务的语言,能让您更快获得匹配询盘和商机。
所在地官方推荐语言: 请选择地址 选择项目所在地后,我们将会推荐相应官方语言
其他沟通语言: 常见国际用语您可以直接选择
+ 添加更多 您可添加更多语言
不能为空!

审核未通过的原因:

* 沟通语言(书面):
请尽量勾选您能提供服务的语言,能让您更快获得匹配询盘和商机。
所在地官方推荐语言: 请选择地址 选择项目所在地后,我们将会推荐相应官方语言
其他沟通语言: 常见国际用语您可以直接选择
+ 添加更多 您可添加更多语言
不能为空!

审核未通过的原因:

如果没有您的语言,请联系我们:service@buildmost.com
充值账号:
充值数额:
《素材纠纷提交须知》
不能为空!
支付方式:
选择您的业务服务类型
请选择您的主要业务服务类型,部分类型支持多选
买家
商家
请输入公司名称 (选填):
设计服务商
可提供设计服务:
建筑设计
室内设计
园林景观设计
钢结构设计
建筑幕墙设计
其他设计
工程服务商
能提供工程服务:
室内装修工程
建筑工程
园林景观工程
其他工程服务
为工程项目采购:
建材、家具、设备等
产品设备供应商
可提供:
机电设备
智能化设备
地面及墙面材料
卫浴
门窗及幕墙
家具
照明
艺术品
酒店用品
其他产品及设备
选择您的业务类型
请选择您的身份类型(公司/个人):
1.若您能提供公司营业执照或相关注册证书,请选择设计公司身份;
2.若您是独立设计师或就职于设计公司,无法提供公司营业执照或相关注册证书,请选择独立设计师身份。
请选择具体身份类型(可多选): 请选择具体身份类型(最多选择8个):
请选择具体身份类型(可多选):
请选择具体身份类型(可多选):
补充账户信息
* 手机号码:
* 验证码:
* 设置密码:
  邀请码:
已有账号?
绑定已有账号
  • 手机号码登录
  • 邮箱登录
密码错误
忘记密码 >
注册成功,欢迎加入!
买家 | 需求方
若您需要寻找设计、装修服务或采购商品,请发布您的需求。
去发布需求 >
商家 | 产品/服务提供方
若您是设计服务商、装修服务商或产品供应商,请完成认证。
去认证 >
微信登录
支付宝登录
QQ 登录
账户登录
使用微信扫码登录
欢迎登录 BuildMost
登录/注册即表示您同意我们的 《BuildMost服务协议》 《BuildMost隐私政策》
请您先阅读并同意服务条款和隐私政策
您勾选了身份。
请您确认:您公司是否有自己的设计团队来承接其他客户的设计服务订单?
请选择是否拥有设计团队
您勾选了身份。
请您确认:您公司是否有自己的施工团队来承接其他客户的工程订单?
请选择是否拥有施工团队
该邮箱/手机号已绑定
如需解绑,请先登录原账号,或使用其他未绑定的邮箱/手机。
微信 QQ Google Facebook 支付宝