x
发布需求
发布需求
咨询
咨询
聊天
聊天
意见反馈
意见反馈
返回顶部
返回顶部
*标题:
*内容描述:
首页 室内设计案例精选 老宅新生 质感私宅

返回上一页

设计服务商: 广州也然设计有限公司 去设计师主页 >>
办公地址: 广东 广州市 白云区
团队规模: 10-50人
注册年份: 2020
年营业收入: 600万元以下
服务点赞数: 0位用户点过赞
项目名称: 老宅新生 质感私宅
设计服务类型: 室内装饰设计(平面图,效果图,施工图)
项目类型: 公寓/小区住宅
项目状态: 已装修完毕
项目地点: 广东 广州市 广州市, 广东, 中国, 东亚
设计风格: 现代
项目档次: 精装型(3星级)
项目背景
这是一个旧房改造项目,原有房子装饰繁复,空间动线混乱,缺乏收纳,我们对居住的家庭成员的生活习惯进行探索了解,优化改造新的格局动线,整理建立新的收纳体系,以满足多元化的生活需求。二胎之家,需要结合不同个体的需求,来进行综合考量空间设计。
这是一个旧房改造项目,原有房子装饰繁复,空间动线混乱,缺乏收纳,我们对居住的家庭成员的生活习惯进行探索了解,优化改造新的格局动线,整理建立新的收纳体系,以满足多元化的生活需求。二胎之家,需要结合不同个体的需求,来进行综合考量空间设计。
这是一个旧房改造项目,原有房子装饰繁复,空间动线混乱,缺乏收纳,我们对居住的家庭成员的生活习惯进行探索了解,优化改造新的格局动线,整理建立新的收纳体系,以满足多元化的生活需求。二胎之家,需要结合不同个体的需求,来进行综合考量空间设计。
这是一个旧房改造项目,原有房子装饰繁复,空间动线混乱,缺乏收纳,我们对居住的家庭成员的生活习惯进行探索了解,优化改造新的格局动线,整理建立新的收纳体系,以满足多元化的生活需求。二胎之家,需要结合不同个体的需求,来进行综合考量空间设计。
这是一个旧房改造项目,原有房子装饰繁复,空间动线混乱,缺乏收纳,我们对居住的家庭成员的生活习惯进行探索了解,优化改造新的格局动线,整理建立新的收纳体系,以满足多元化的生活需求。二胎之家,需要结合不同个体的需求,来进行综合考量空间设计。
这是一个旧房改造项目,原有房子装饰繁复,空间动线混乱,缺乏收纳,我们对居住的家庭成员的生活习惯进行探索了解,优化改造新的格局动线,整理建立新的收纳体系,以满足多元化的生活需求。二胎之家,需要结合不同个体的需求,来进行综合考量空间设计。
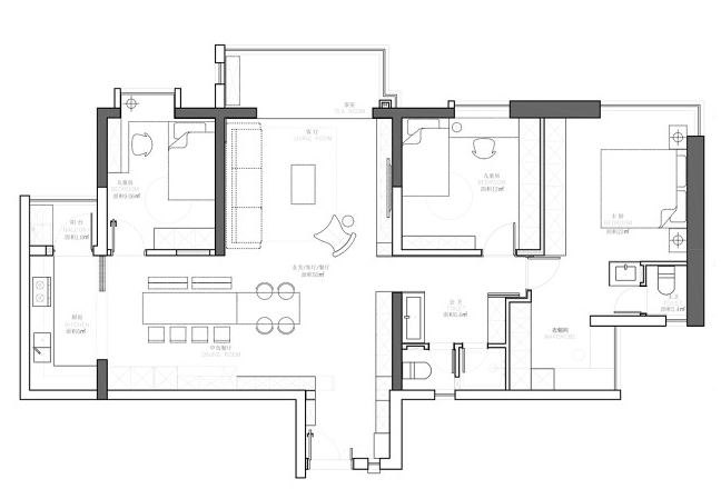
平面图
这是一个旧房改造项目,原有房子装饰繁复,空间动线混乱,缺乏收纳,我们对居住的家庭成员的生活习惯进行探索了解,优化改造新的格局动线,整理建立新的收纳体系,以满足多元化的生活需求。二胎之家,需要结合不同个体的需求,来进行综合考量空间设计。
效果图
这是一个旧房改造项目,原有房子装饰繁复,空间动线混乱,缺乏收纳,我们对居住的家庭成员的生活习惯进行探索了解,优化改造新的格局动线,整理建立新的收纳体系,以满足多元化的生活需求。二胎之家,需要结合不同个体的需求,来进行综合考量空间设计。
以上内容由设计服务商上传
以上内容均由广州也然设计有限公司上传
已做版权声明,如需转载请获得版权人的许可
评论
${0} 条评论 ${0} 条评论
暂无评论
发表评论
* 沟通语言(口语):
请尽量勾选您能提供服务的语言,能让您更快获得匹配询盘和商机。
所在地官方推荐语言: 请选择地址 选择项目所在地后,我们将会推荐相应官方语言
其他沟通语言: 常见国际用语您可以直接选择
+ 添加更多 您可添加更多语言
不能为空!

审核未通过的原因:

* 沟通语言(书面):
请尽量勾选您能提供服务的语言,能让您更快获得匹配询盘和商机。
所在地官方推荐语言: 请选择地址 选择项目所在地后,我们将会推荐相应官方语言
其他沟通语言: 常见国际用语您可以直接选择
+ 添加更多 您可添加更多语言
不能为空!

审核未通过的原因:

如果没有您的语言,请联系我们:service@buildmost.com
充值账号:
充值数额:
《素材纠纷提交须知》
不能为空!
支付方式:
选择您的业务服务类型
请选择您的主要业务服务类型,部分类型支持多选
买家
商家
请输入公司名称 (选填):
设计服务商
可提供设计服务:
建筑设计
室内设计
园林景观设计
钢结构设计
建筑幕墙设计
其他设计
工程服务商
能提供工程服务:
室内装修工程
建筑工程
园林景观工程
其他工程服务
为工程项目采购:
建材、家具、设备等
产品设备供应商
可提供:
机电设备
智能化设备
地面及墙面材料
卫浴
门窗及幕墙
家具
照明
艺术品
酒店用品
其他产品及设备
选择您的业务类型
请选择您的身份类型(公司/个人):
1.若您能提供公司营业执照或相关注册证书,请选择设计公司身份;
2.若您是独立设计师或就职于设计公司,无法提供公司营业执照或相关注册证书,请选择独立设计师身份。
请选择具体身份类型(可多选): 请选择具体身份类型(最多选择8个):
请选择具体身份类型(可多选):
请选择具体身份类型(可多选):
补充账户信息
* 手机号码:
* 验证码:
* 设置密码:
  邀请码:
已有账号?
绑定已有账号
  • 手机号码登录
  • 邮箱登录
密码错误
忘记密码 >
注册成功,欢迎加入!
买家 | 需求方
若您需要寻找设计、装修服务或采购商品,请发布您的需求。
去发布需求 >
商家 | 产品/服务提供方
若您是设计服务商、装修服务商或产品供应商,请完成认证。
去认证 >
微信登录
支付宝登录
QQ 登录
账户登录
使用微信扫码登录
欢迎登录 BuildMost
登录/注册即表示您同意我们的 《BuildMost服务协议》 《BuildMost隐私政策》
请您先阅读并同意服务条款和隐私政策
您勾选了身份。
请您确认:您公司是否有自己的设计团队来承接其他客户的设计服务订单?
请选择是否拥有设计团队
您勾选了身份。
请您确认:您公司是否有自己的施工团队来承接其他客户的工程订单?
请选择是否拥有施工团队
该邮箱/手机号已绑定
如需解绑,请先登录原账号,或使用其他未绑定的邮箱/手机。
微信 QQ Google Facebook 支付宝