x
发布需求
发布需求
咨询
咨询
聊天
聊天
意见反馈
意见反馈
返回顶部
返回顶部
*标题:
*内容描述:
首页 室内设计案例精选 贵阳琉森堡

返回上一页

设计服务商: 吴昌荣 去设计师主页 >>
办公地址: 上海 上海市 宝山区
服务点赞数: 0位用户点过赞
项目名称: 贵阳琉森堡
设计服务类型: 室内装饰设计(平面图,效果图,施工图)
项目类型: 公寓/小区住宅
项目状态: 已装修完毕
项目地点: 贵州 贵阳市 贵阳市, 贵州, 中国, 东亚
设计风格: 美式
项目档次: 豪华型(4星级)
项目背景
该案例位于贵阳,面积:200平米,风格:美式轻奢
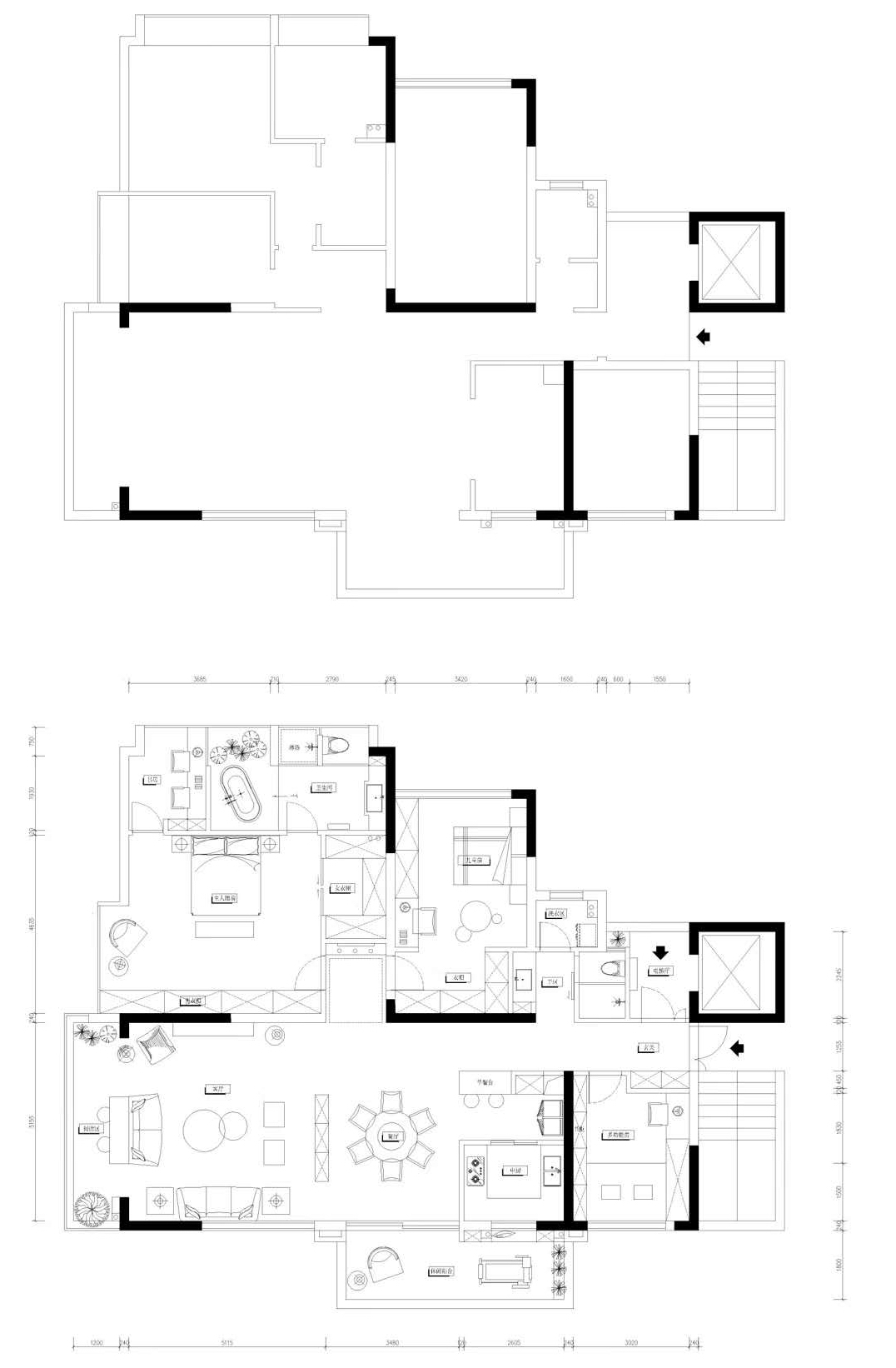
平面图
通过LDK一体式设计,让整个动区空间感达到最大,才能匹配的上200平的房子该有的空间感,同时主卧面积配置和豪华程度也在一定程度上体现了豪宅该有的配比。
通过LDK一体式设计,让整个动区空间感达到最大,才能匹配的上200平的房子该有的空间感,同时主卧面积配置和豪华程度也在一定程度上体现了豪宅该有的配比。
效果图
通过LDK一体式设计,让整个动区空间感达到最大,才能匹配的上200平的房子该有的空间感,同时主卧面积配置和豪华程度也在一定程度上体现了豪宅该有的配比。
通过LDK一体式设计,让整个动区空间感达到最大,才能匹配的上200平的房子该有的空间感,同时主卧面积配置和豪华程度也在一定程度上体现了豪宅该有的配比。
通过LDK一体式设计,让整个动区空间感达到最大,才能匹配的上200平的房子该有的空间感,同时主卧面积配置和豪华程度也在一定程度上体现了豪宅该有的配比。
通过LDK一体式设计,让整个动区空间感达到最大,才能匹配的上200平的房子该有的空间感,同时主卧面积配置和豪华程度也在一定程度上体现了豪宅该有的配比。
以上内容由设计服务商上传
以上内容均由吴昌荣上传
已做版权声明,如需转载请获得版权人的许可
评论
${0} 条评论 ${0} 条评论
暂无评论
发表评论
* 沟通语言(口语):
请尽量勾选您能提供服务的语言,能让您更快获得匹配询盘和商机。
所在地官方推荐语言: 请选择地址 选择项目所在地后,我们将会推荐相应官方语言
其他沟通语言: 常见国际用语您可以直接选择
+ 添加更多 您可添加更多语言
不能为空!

审核未通过的原因:

* 沟通语言(书面):
请尽量勾选您能提供服务的语言,能让您更快获得匹配询盘和商机。
所在地官方推荐语言: 请选择地址 选择项目所在地后,我们将会推荐相应官方语言
其他沟通语言: 常见国际用语您可以直接选择
+ 添加更多 您可添加更多语言
不能为空!

审核未通过的原因:

如果没有您的语言,请联系我们:service@buildmost.com
充值账号:
充值数额:
《素材纠纷提交须知》
不能为空!
支付方式:
选择您的业务服务类型
请选择您的主要业务服务类型,部分类型支持多选
买家
商家
请输入公司名称 (选填):
设计服务商
可提供设计服务:
建筑设计
室内设计
园林景观设计
钢结构设计
建筑幕墙设计
其他设计
工程服务商
能提供工程服务:
室内装修工程
建筑工程
园林景观工程
其他工程服务
为工程项目采购:
建材、家具、设备等
产品设备供应商
可提供:
机电设备
智能化设备
地面及墙面材料
卫浴
门窗及幕墙
家具
照明
艺术品
酒店用品
其他产品及设备
选择您的业务类型
请选择您的身份类型(公司/个人):
1.若您能提供公司营业执照或相关注册证书,请选择设计公司身份;
2.若您是独立设计师或就职于设计公司,无法提供公司营业执照或相关注册证书,请选择独立设计师身份。
请选择具体身份类型(可多选): 请选择具体身份类型(最多选择8个):
请选择具体身份类型(可多选):
请选择具体身份类型(可多选):
补充账户信息
* 手机号码:
* 验证码:
* 设置密码:
  邀请码:
已有账号?
绑定已有账号
  • 手机号码登录
  • 邮箱登录
密码错误
忘记密码 >
注册成功,欢迎加入!
买家 | 需求方
若您需要寻找设计、装修服务或采购商品,请发布您的需求。
去发布需求 >
商家 | 产品/服务提供方
若您是设计服务商、装修服务商或产品供应商,请完成认证。
去认证 >
微信登录
支付宝登录
QQ 登录
账户登录
使用微信扫码登录
欢迎登录 BuildMost
登录/注册即表示您同意我们的 《BuildMost服务协议》 《BuildMost隐私政策》
请您先阅读并同意服务条款和隐私政策
您勾选了身份。
请您确认:您公司是否有自己的设计团队来承接其他客户的设计服务订单?
请选择是否拥有设计团队
您勾选了身份。
请您确认:您公司是否有自己的施工团队来承接其他客户的工程订单?
请选择是否拥有施工团队
该邮箱/手机号已绑定
如需解绑,请先登录原账号,或使用其他未绑定的邮箱/手机。
微信 QQ Google Facebook 支付宝