x
发布需求
发布需求
咨询
咨询
聊天
聊天
意见反馈
意见反馈
返回顶部
返回顶部
*标题:
*内容描述:
首页 室内设计案例精选 餐饮设计丨猪脚洪南油店

返回上一页

设计服务商: 吴晖庆 去设计师主页 >>
办公地址: 广东 深圳市 福田区
服务点赞数: 0位用户点过赞
项目名称: 餐饮设计丨猪脚洪南油店
设计服务类型: 室内装饰设计(平面图,效果图,施工图)
项目类型: 餐厅
项目状态: 已装修完毕
项目地点: 广东 深圳市 深圳市, 广东, 中国, 东亚
设计风格: 现代
项目档次: 精装型(3星级)
项目背景
设计的初衷就是从品牌视觉到空间的延伸,品牌的Logo能带出品牌本身,作为一个快餐品类,如何成为让人们能快速的识别的品牌空间呢? 我们经过深入的思考,其它也简单,就是品牌加空间的整体系统设计,能够给消费者带来更深切、深入的生动的空间体验。
项目创意
空间的创意:来源于品牌“洪”,解构后应用于空间的表达,突显出品牌的独特性及空间的记忆。
空间构成
材料工艺
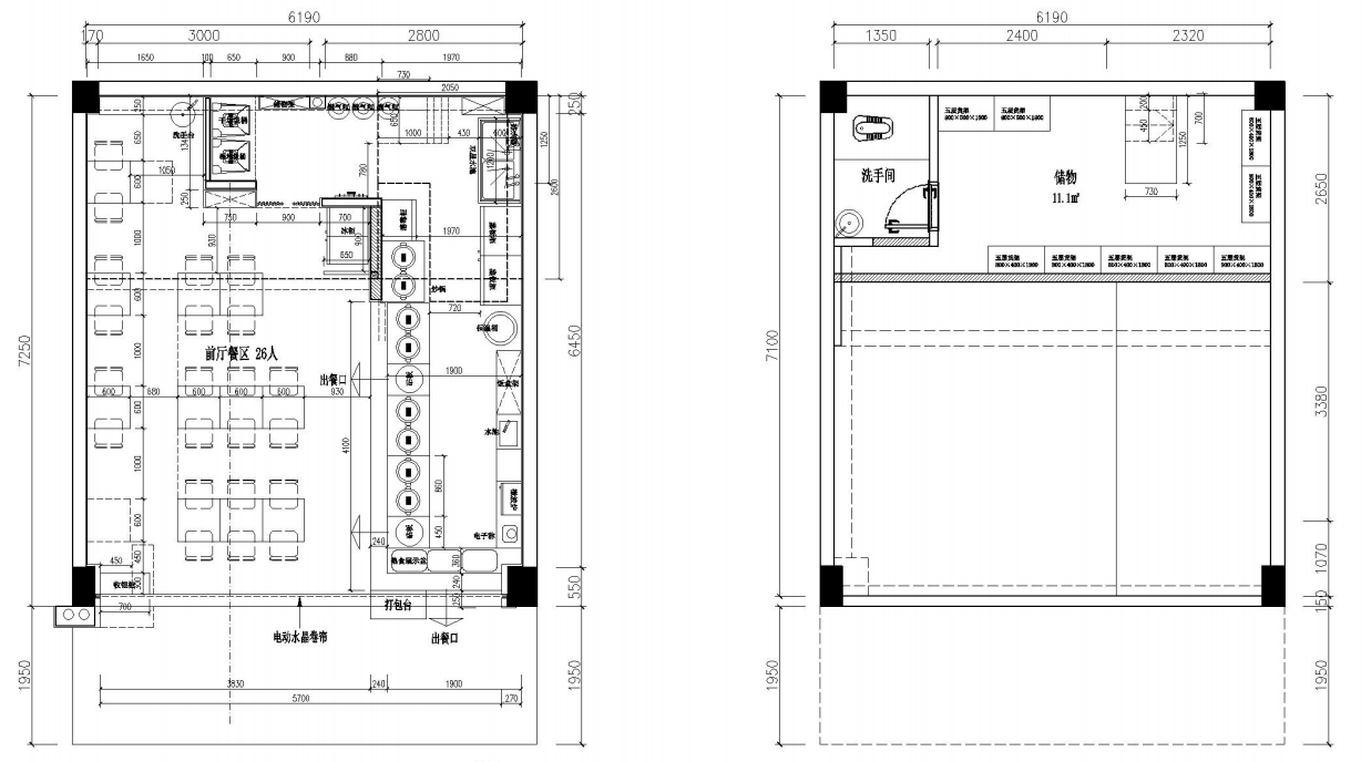
平面图
整体空间虽然说面积不大,但是要考虑到品牌的出品和快捷的换台效率,空间纵向2:1一分为二,平面和空间规划我们不断的调整比例和优化,保证了最优的出桌和高效的展示及出回餐,才形成了现在最终的一个用餐环境。
效果图
空间整体效果表达,每个细节都精细考虑,品牌统一输出。
空间整体效果表达,每个细节都精细考虑,品牌统一输出。
空间整体效果表达,每个细节都精细考虑,品牌统一输出。
以上内容由设计服务商上传
以上内容均由吴晖庆上传
已做版权声明,如需转载请获得版权人的许可
评论
${0} 条评论 ${0} 条评论
暂无评论
发表评论
* 沟通语言(口语):
请尽量勾选您能提供服务的语言,能让您更快获得匹配询盘和商机。
所在地官方推荐语言: 请选择地址 选择项目所在地后,我们将会推荐相应官方语言
其他沟通语言: 常见国际用语您可以直接选择
+ 添加更多 您可添加更多语言
不能为空!

审核未通过的原因:

* 沟通语言(书面):
请尽量勾选您能提供服务的语言,能让您更快获得匹配询盘和商机。
所在地官方推荐语言: 请选择地址 选择项目所在地后,我们将会推荐相应官方语言
其他沟通语言: 常见国际用语您可以直接选择
+ 添加更多 您可添加更多语言
不能为空!

审核未通过的原因:

如果没有您的语言,请联系我们:service@buildmost.com
充值账号:
充值数额:
《素材纠纷提交须知》
不能为空!
支付方式:
选择您的业务服务类型
请选择您的主要业务服务类型,部分类型支持多选
买家
商家
请输入公司名称 (选填):
设计服务商
可提供设计服务:
建筑设计
室内设计
园林景观设计
钢结构设计
建筑幕墙设计
其他设计
工程服务商
能提供工程服务:
室内装修工程
建筑工程
园林景观工程
其他工程服务
为工程项目采购:
建材、家具、设备等
产品设备供应商
可提供:
机电设备
智能化设备
地面及墙面材料
卫浴
门窗及幕墙
家具
照明
艺术品
酒店用品
其他产品及设备
选择您的业务类型
请选择您的身份类型(公司/个人):
1.若您能提供公司营业执照或相关注册证书,请选择设计公司身份;
2.若您是独立设计师或就职于设计公司,无法提供公司营业执照或相关注册证书,请选择独立设计师身份。
请选择具体身份类型(可多选): 请选择具体身份类型(最多选择8个):
请选择具体身份类型(可多选):
请选择具体身份类型(可多选):
补充账户信息
* 手机号码:
* 验证码:
* 设置密码:
  邀请码:
已有账号?
绑定已有账号
  • 手机号码登录
  • 邮箱登录
密码错误
忘记密码 >
注册成功,欢迎加入!
买家 | 需求方
若您需要寻找设计、装修服务或采购商品,请发布您的需求。
去发布需求 >
商家 | 产品/服务提供方
若您是设计服务商、装修服务商或产品供应商,请完成认证。
去认证 >
微信登录
支付宝登录
QQ 登录
账户登录
使用微信扫码登录
欢迎登录 BuildMost
登录/注册即表示您同意我们的 《BuildMost服务协议》 《BuildMost隐私政策》
请您先阅读并同意服务条款和隐私政策
您勾选了身份。
请您确认:您公司是否有自己的设计团队来承接其他客户的设计服务订单?
请选择是否拥有设计团队
您勾选了身份。
请您确认:您公司是否有自己的施工团队来承接其他客户的工程订单?
请选择是否拥有施工团队
该邮箱/手机号已绑定
如需解绑,请先登录原账号,或使用其他未绑定的邮箱/手机。
微信 QQ Google Facebook 支付宝