x
发布需求
发布需求
咨询
咨询
聊天
聊天
意见反馈
意见反馈
返回顶部
返回顶部
*
标题:
*
内容描述:
确定
取消
English
/
中文
VIP会员
BMostChat APP
BuildMost APP
注册
0
登录
用户中心
{{item.companyIntroduction }}
您好,
发布需求
退出
登录
没有账号 ?
注册
首页
找设计
找装修公司
找产品(工厂)
酒店、餐厅用品
需求大厅
The 130
th
Canton Fair
帮助中心
|
分享
首页
室内设计案例精选
Meeting You名盾旗舰体验店
返回上一页
立即联系
立即联系
收藏
分享
设计服务商:
吴晖庆
去设计师主页 >>
办公地址:
广东 深圳市 福田区
服务点赞数:
0
位用户点过赞
项目名称:
Meeting You名盾旗舰体验店
设计服务类型:
室内装饰设计(平面图,效果图,施工图)
项目类型:
餐厅
项目状态:
已装修完毕
项目地点:
广东 深圳市
深圳市, 广东, 中国, 东亚
设计风格:
现代
项目档次:
精装型(3星级)
联系该服务商
查看更多设计案例
定向询价
跨界体验集合馆,一家集简餐、咖啡、私人定制西装及旗下服装品牌的集合店。
项目背景
以“旅行&机车”为主题设计概念,建造一家集多元商业液态及跨界体验集合馆。
项目创意
跨界体验集合馆,一家集简餐、咖啡、私人定制西装及旗下服装品牌的集合店。
空间构成
材料工艺
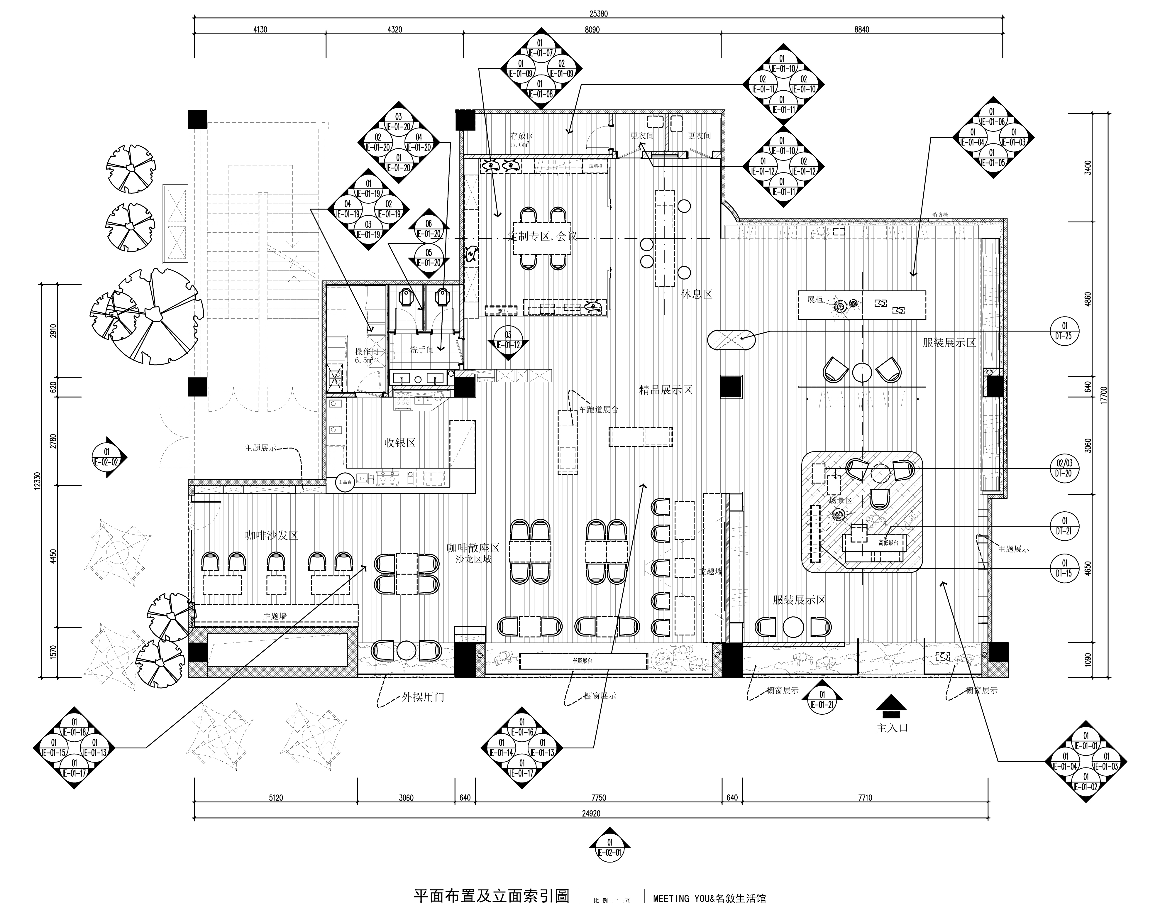
平面图
多功能的体验店,功能规划分区有: 1、餐饮,简餐及咖啡 2、私人西服定制 3、自有服装品牌区 4、橱窗主题区
效果图
跨界体验集合馆,一家集简餐、咖啡、私人定制西装及旗下服装品牌的集合店。
以上内容由设计服务商上传
以上内容均由
吴晖庆
上传
已做版权声明,如需转载请获得版权人的许可
联系该服务商
查看更多设计案例
定向询价
定向询价
查看更多设计案例
评论
交易反馈
评论
共
${0}
条评论
共
${0}
条评论
暂无评论
发表评论
表情
发表
交易反馈
共
${0}
条交易反馈
共
${0}
条交易反馈
暂无交易反馈
发表交易反馈
(提交您对该设计服务商的反馈。请勿以任何形式进行推广活动(包括留下联系方式),否则您的账号将被冻结。多次违规将导致您的账号永久封禁。)
表情
发表
*
沟通语言(口语)
:
请尽量勾选您能提供服务的语言,能让您更快获得匹配询盘和商机。
所在地官方推荐语言:
请选择地址
选择项目所在地后,我们将会推荐相应官方语言
其他沟通语言:
常见国际用语您可以直接选择
+ 添加更多
您可添加更多语言
不能为空!
审核未通过的原因:
*
沟通语言(书面)
:
请尽量勾选您能提供服务的语言,能让您更快获得匹配询盘和商机。
所在地官方推荐语言:
请选择地址
选择项目所在地后,我们将会推荐相应官方语言
其他沟通语言:
常见国际用语您可以直接选择
+ 添加更多
您可添加更多语言
不能为空!
审核未通过的原因:
确定
取消
如果没有您的语言,请联系我们:
service@buildmost.com
充值账号:
BMyyyyy
充值数额:
《素材纠纷提交须知》
不能为空!
支付方式:
确定
取消
选择您的
业务
服务
类型
请选择您的主要
业务
服务
类型,部分类型支持多选
买家
商家
请输入公司名称 (选填):
设计服务商
可提供设计服务:
建筑设计
室内设计
园林景观设计
钢结构设计
建筑幕墙设计
其他设计
工程服务商
能提供工程服务:
室内装修工程
建筑工程
园林景观工程
其他工程服务
为工程项目采购:
建材、家具、设备等
产品设备供应商
可提供:
机电设备
智能化设备
地面及墙面材料
卫浴
门窗及幕墙
家具
照明
艺术品
酒店用品
其他产品及设备
提交
下一步
选择您的业务类型
请选择您的身份类型(公司/个人):
1.若您能提供公司营业执照或相关注册证书,请选择设计公司身份;
2.若您是独立设计师或就职于设计公司,无法提供公司营业执照或相关注册证书,请选择独立设计师身份。
请选择具体身份类型(可多选):
请选择具体身份类型(最多选择8个):
请选择具体身份类型(可多选):
请选择具体身份类型(可多选):
返回
提交
补充账户信息
*
手机号码:
*
电子邮箱:
*
验证码:
获取验证码
*
设置密码:
邀请码:
提交
已有账号?
去绑定
绑定已有账号
手机号码登录
邮箱登录
手机号码:
请输入您的手机号码
验证码:
获取验证码
电子邮箱:
请输入电子邮箱地址
密码:
密码错误
忘记密码 >
使用密码登录>
使用验证码登录>
< 返回补充账户信息
绑定账号
注册成功,欢迎加入!
买家 | 需求方
若您需要寻找设计、装修服务或采购商品,请发布您的需求。
去发布需求 >
商家 | 产品/服务提供方
若您是设计服务商、装修服务商或产品供应商,请完成认证。
去认证 >
微信登录
支付宝登录
QQ 登录
账户登录
使用微信扫码登录
欢迎登录 BuildMost
手机号码登录
邮箱登录
手机号码:
请输入您的手机号码
验证码:
获取验证码
电子邮箱:
请输入电子邮箱地址
密码:
密码错误
登录
忘记密码
使用密码登录>
使用验证码登录>
没有账号 ?
注册
登录/注册即表示您同意我们的
《BuildMost服务协议》
和
《BuildMost隐私政策》
请您先阅读并同意服务条款和隐私政策
您勾选了
身份。
请您确认:
您公司是否有自己的
设计团队来承接其他客户的设计服务订单?
请选择是否拥有设计团队
您勾选了
身份。
请您确认:
您公司是否有自己的
施工团队来承接其他客户的工程订单?
请选择是否拥有施工团队
该邮箱/手机号已绑定
微信
。
如需解绑,请先登录原账号,或使用其他未绑定的邮箱/手机。
微信
QQ
Google
Facebook
支付宝
去登录
更换邮箱/手机
评论
交易反馈